Vorlage Gefährdungsbeurteilung Schön Gefährdungsbeurteilung Auf Bau Und Montagestellen
Gut Vorlage Gefährdungsbeurteilung
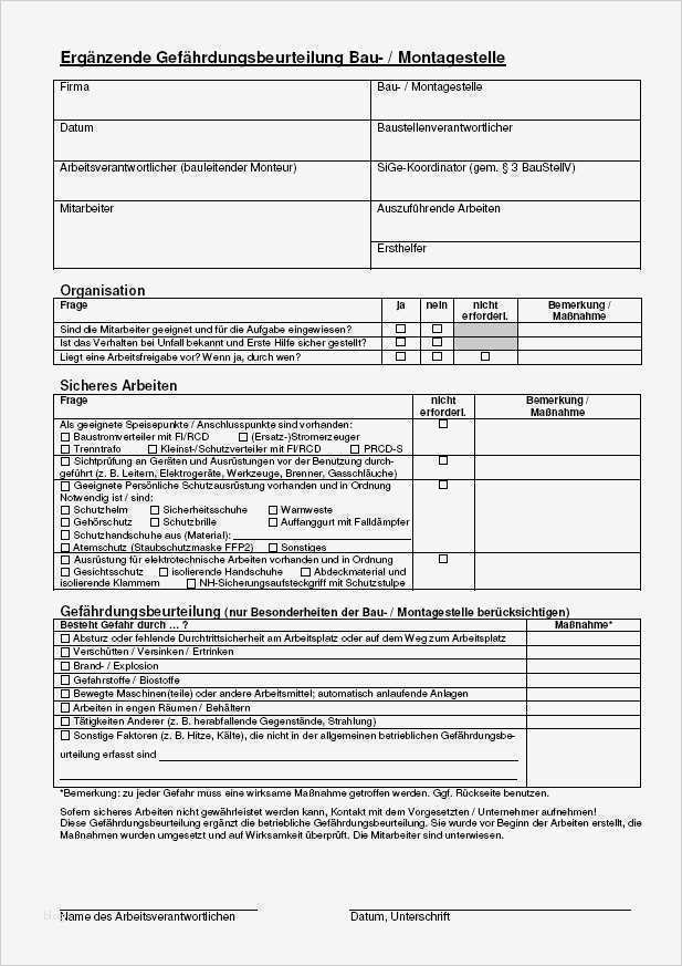
Bilder gefährdungsbeurteilungen muster vorlagen zum download sie müssen eine gefährdungsbeurteilung erstellen bei uns finden sie online eine große auswahl an mustern und vorlagen zum einfachen download bghm gefährdungsbeurteilungen ratgeber zur gefährdungsbeurteilung der ratgeber basiert auf aktuellen arbeitswissenschaftlichen erkenntnissen vermittelt branchenunabhängig grundwissen und stellt konkrete handlungshilfen für den betrieblichen arbeitsschutz zur verfügung zum ratgeber zur gefährdungsbeurteilung link baua vorlagen zur gefährdungsbeurteilung — b em bg etem haben sie fragen unter 0221 3778 0 erreichen sie uns telefonisch hier finden sie ihre ansprechperson für rehabilitation und entschädigung prävention
gepostet einfach durch Jacqueline Dean bei 2017-06-22 02:13:06.Umherauszufinden alle Bilder innerhalb Gut Vorlage Gefährdungsbeurteilung
Bilder BilderGalerieBitte Folgen , Link.


























































