Gefährdungsbeurteilung Dokumentation Vorlage Genial Gefährdungsbeurteilung Auf Bau Und Montagestellen

Elegant Gefährdungsbeurteilung Dokumentation Vorlage
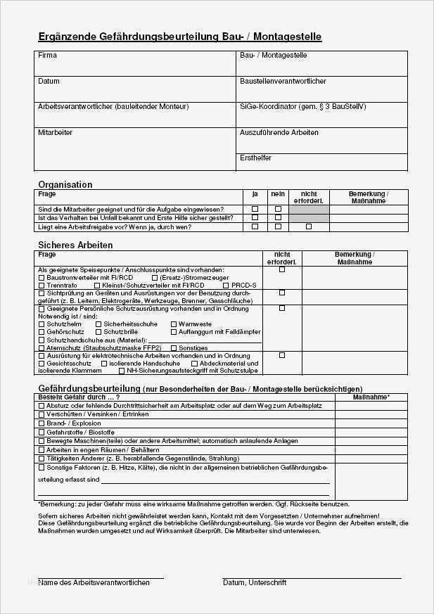
Ideen gefährdungsbeurteilung muster dguv gefährdungsbeurteilung – muster unternehmen anlass datum geändert arbeitsbereich erstbeurteilung tätigkeit 1 anlieferung des containers gefährdungsbeurteilung muster helfen bei der erstellung gefährdungsbeurteilung muster helfen bei der erstellung eine gefährdungsbeurteilung hat zum ziel alle gefährdungen denen beschäftigte an ihrem arbeitsplatz ausgesetzt sind rechtzeitig zu erkennen und zu bewerten daraus sind angemessene maßnahmen abzuleiten und konsequent umzusetzen bghm gefährdungsbeurteilungen line portal zur gefährdungsbeurteilung das portal der bundesanstalt für arbeitsschutz und arbeitsmedizin baua unterstützt sie beim durchführen einer gefährdungsbeurteilung beispielsweise mit vielen relevanten handlungshilfen vermittelt wird sowohl basis als auch expertenwissen zum line portal zur gefährdungsbeurteilung
gepostet durch cuteslina bei 2021-07-27 06:16:07.Anzeigen so gutwie alle Fotos im gesamten Elegant Gefährdungsbeurteilung Dokumentation Vorlage
Ideen BilderGaleriemusstdu einhalten dies Hyperlink.





































